El mundo del diseño arquitectónico y el interiorismo ha sido revolucionado por las nuevas tecnologías. Programas como AutoCAD, Revit y SketchUp son herramientas imprescindibles que han transformado la forma en que los profesionales crean y visualizan sus proyectos. En este post, exploraremos la importancia de estas tecnologías y cómo pueden mejorar tus diseños.
AutoCAD: Precisión y Productividad
AutoCAD es una herramienta fundamental para cualquier arquitecto o diseñador de interiores. Sus beneficios incluyen:
- Precisión Milimétrica: Los planos digitales permiten trabajar con una exactitud que no se puede lograr a mano.
- Aumento de la Productividad: La capacidad de modificar y reutilizar elementos acelera significativamente el proceso de diseño.
- Documentación Completa: AutoCAD facilita la creación de planos detallados con todas las especificaciones necesarias.

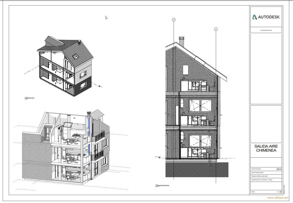
Revit: Modelado Integral y Coordinación
Revit lleva el diseño al siguiente nivel con su enfoque en el Modelado de Información de Construcción (BIM). Sus ventajas son:
- BIM Integral: Permite crear modelos 3D detallados que contienen datos precisos sobre cada componente del edificio.
- Coordinación Multidisciplinaria: Múltiples usuarios pueden trabajar en el mismo proyecto, mejorando la colaboración entre diferentes profesionales.
- Visualizaciones Realistas: Genera visualizaciones 3D que ayudan a comunicar ideas y conceptos a clientes y stakeholders.
SketchUp: Creatividad y Flexibilidad
SketchUp es conocido por su facilidad de uso y flexibilidad. Ideal para la fase conceptual del diseño, ofrece:
- Interfaz Intuitiva: Facilita la creación rápida de modelos 3D sin una curva de aprendizaje pronunciada.
- Exploración Creativa: Permite a los diseñadores experimentar con formas y volúmenes de manera intuitiva.
- Ampliabilidad: Una amplia gama de extensiones y plugins que personalizan el software según las necesidades específicas del proyecto.

Beneficios Generales de las Nuevas Tecnologías
Adoptar estas tecnologías en el diseño arquitectónico e interiorismo trae numerosos beneficios, incluyendo:
- Innovación y Competitividad: Mantente a la vanguardia de la industria con herramientas que te permiten ofrecer servicios innovadores.
- Mejora de la Comunicación: Las visualizaciones realistas facilitan la comunicación de ideas complejas, reduciendo malentendidos.
- Reducción de Costos: La precisión y eficiencia en el diseño reducen errores y retrabajos, ahorrando tiempo y dinero.
- Sostenibilidad: Evalúa el impacto ambiental de tus proyectos y toma decisiones más informadas para crear espacios sostenibles.
Conclusión
En resumen, utilizar programas como AutoCAD, Revit y SketchUp no solo mejora la precisión y eficiencia de tus diseños, sino que también te posiciona como un profesional competitivo y sostenible. Estas herramientas son esenciales para cualquier arquitecto o diseñador de interiores que quiera ofrecer proyectos de alta calidad y estar a la vanguardia de la industria.
Palabras clave: diseño arquitectónico, AutoCAD, Revit, SketchUp, interiorismo, nuevas tecnologías, BIM, precisión en diseño, visualización 3D, sostenibilidad en arquitectura
Muchas gracias por suscribirte!


